Larghezze disponibili da scegliere dal menu a tendina qui sotto: 70, 80, 90 cm
Caratteristiche:
- Altezza: 235 mm
- Spessore dell'anta 4 cm
- Pannello in MDF di alta qualità rivestito con una lastra FINISH color noce ad alta resistenza
- Gli elementi di finitura sono costituiti da una striscia profilata a livello del vetro con profilo rotondo e vetro di sicurezza satinato
- Direzione di apertura: spinta a destra o a sinistra (SPECIFICARE)
- Maniglia e serratura a chiave incluse
- Colore: calvados
Struttura a nido d'ape

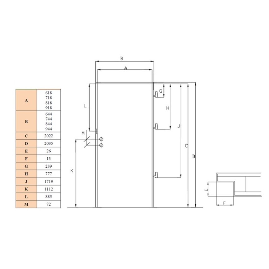
Telaio per porta regolabile alla fine di un cantiere o su una nuova parete
- Telaio per porta regolabile di alta qualità in MDF, rivestito con una lastra tipo FINISH, progettato per l'installazione in pareti in cartongesso o anche in lavori di ristrutturazione per coprire il vecchio telaio ed evitare così di rimuoverlo.
Il kit comprende :
- telaio della porta (elementi orizzontali e due verticali)
- Scrocco della serratura della porta
- Guarnizione della porta
- Gruppo cerniera telaio porta
- Selezionare la gamma di regolazione del telaio della porta dal menu a discesa sottostante in base allo spessore delle pareti divisorie: 60-80 mm, 80-100 mm.
